高效斜板沉淀池选型指导,看完一目了然!

设备简介
1.1 浅池理论
高效斜板沉淀池应用哈真浅池理论如图所示,在池长为L,池深为H,池中水平流速为v,颗粒沉速为u0的沉淀池中,在理想状态下,L/H=v/u0。
沉淀池原理图
如果处理得水流量为V,沉淀池底面积为A,沉淀时间为t,则V=H·A/t,t=L/v=H/u0,即得V=Au0。可见,沉淀池的处理能力,只与沉淀池的底面积A和沉降速度u0有关,而与沉淀池的深度无关。
如果用水平隔板,将H分为3等层,每层深H/3,在u0与v不变的条件下,则只需L/3,就可将沉速u0的颗粒去除,也即总容积可减小到1/3。如果池长L不变,由于池深为H/3,则水平流速可增加到3v,仍能将沉速为u0的颗粒沉淀掉,也即处理能力可提高3倍。把沉淀池分成n层就可把处理能力提高n倍。这就是浅池沉淀理论。
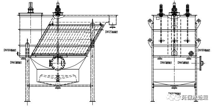
1.2 工作原理
高效斜板沉淀池主要用于废水预处理和好氧池后端,废水由进水管进入池体,向下流通过位于池体中间的进水室,由导流板反射,再通过里面的进水布水口进入斜板。随着溶液向上流动,其所含的固体颗粒就沉淀在平行的斜板组件上,然后划入池底的污泥斗中。
在污泥斗中,通过刮泥机,污泥浓缩后在从底部污泥出口排出。而澄清液离开斜板通过顶部的出水通路口流出。然后通过可调出水堰流汇集,由出水口流出。
在斜板顶部设计的通路口的目的是使澄清液在通过集水渠时形成一个压力差,保证斜板间流 态分布均匀,从而使整个面积都被利用。这样操作的可靠性增大,减少溶液流态影响,还减少了结垢淤泥的可能。
1.3 主要组成
斜板沉淀池主要包括:沉淀池体、斜板组件、集水槽、可调出水堰板、集泥刮泥机(可选)、混合反应段(可选)等部件组成。
1.4 设备特点
a) 增大沉淀能力:沉淀面积增大;斜板可以对沉淀物起到再凝聚作用,使絮状物增大,易于沉淀;斜板沉淀创造了层流条件,沉淀效果好。
b) 下沉污泥浓度增大。
c) 排出的清水量整年保持稳定,而且不存在污泥覆盖。
1.5 设备分类
根据不同水质的设计要求可分为3类:
普通高效斜板沉淀池;
带刮泥机高效斜板沉淀池;
带混合反应段和刮泥机高效斜板沉淀池;
1.5.1 普通高效斜板沉淀池
此类普通高效斜板沉淀池不含刮泥机,适用于污水中污泥负荷较小,污泥沉降性能好的水质。污泥通过下端泥斗浓缩后排出。
1.5.2带刮泥机沉淀池
此类带集刮泥机的高效斜板沉淀池,适用于污水中污泥负荷较大,污泥沉降性能好的水质,污泥通过下刮泥机刮至泥斗后排出。
1.5.3含混合反应段高效斜板沉淀池
根据客户需求和工艺设计要求,高效斜板沉淀池前端可加混合反应段,配套相应的搅拌机污泥通过下刮泥机刮至泥斗后排出。
2. 选型说明
2.1 选型参数
一般情况下高效斜板沉淀池的选型是根据设计水量和处理负荷来选型的。
选型举例:根据设计负荷,如果废水中悬浮物浓度较高,污泥负荷较大且污泥沉降性能良好,则选择带刮泥机斜板沉淀池(常用规格,需校核负荷)。
污水中污泥负荷较小,污泥沉降性能好的水质。污泥通过下端泥斗浓缩后排出,即选择不带刮泥机的斜板沉淀池(常用规格,需校核负荷)。
2.2 设备配置表
不含刮泥机设备配置表
含刮泥机设备配置表
2.3 防腐
根据处理水质要求(主要为PH)做池体内壁防腐:
?标准防腐:池体内壁底漆一道, 环氧煤沥青两道;
?底漆一道,环氧煤沥青三道;
?玻璃钢防腐(三油两布,五油三布,七油五布);
2.4 斜板
?斜板材质可选,常规做PVC板(4mm),特殊要求做不锈钢板(2-3mm);
?斜板安装角度60°,斜板间距一般为10cm;
?斜板通过圆钢穿杆连接;